Turismo Neuquén: Cómo será la confitería que se construirá en el Parque Temático Vía Christi de Junín de los Andes

Se ubicará a la altura de la cruz y tendrá una vista privilegiada desde el cerro que lleva su nombre.

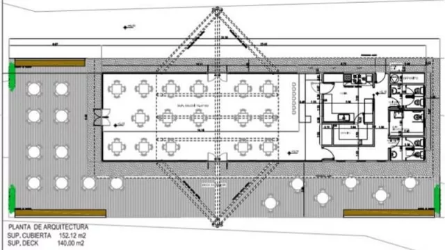
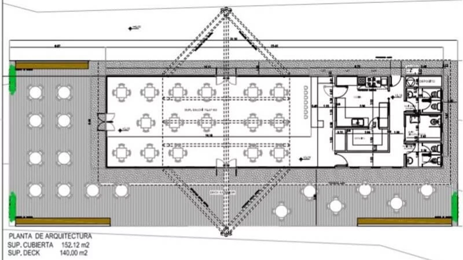
El establecimiento gastronómico tendrá una superficie total cubierta de 150 m2, compuesto por un salón de 100 m2, y un deck exterior de 150 m2. El establecimiento contará con un sector de sanitarios, baños para personas con discapacidad y una cocina con depósito.

El mismo será construido con el sistema de ladrillos de madera implementado por la Corporación Forestal Neuquina (Corfone), dependiente de la Unidad Ejecutora Provincial, de la Secretaría de Desarrollo Territorial y Ambiente de la Provincia del Neuquén.


La confitería  fue diseñada por el área de Inversiones del Ministerio de Turismo provincial en conjunto con Corfone sobre la base del proyecto elaborado por el reconocido arquitecto Alejandro Santana.

Con esta obra se pretende jerarquizar el espacio turístico en el Corredor de los Lagos, a través de la diversificación y ampliación de la oferta de servicios que ofrece el parque. Habrá nuevas actividades durante el recorrido y estadías más largas, lo cual mejorará la calidad de la experiencia.

Además -este espacio de venta de bebidas y alimentos-, permitirá la posibilidad de poner en valor la gastronomía y la pastelería local. Al mismo tiempo se generarán ingresos para el autofinanciamiento del atractivo turístico religioso, generando nuevos puestos de trabajo.

El plazo de construcción del edificio se encuentra estipulado en unos 180 días corridos, una vez recibido el desembolso y definida la fecha de inicio.

El proyecto terminado -que ya tiene el visto bueno del gobierno nacional-, forma parte de un paquete de obras turísticas financiado por el Ministerio de Turismo y Deportes de la Nación por una suma total de unos $ 62 millones a través del Plan de Auxilio, Capacitación e Infraestructura para el Turismo (PACIT) destinado a la reactivación económica tras la pandemia.


Son cuatro proyectos aprobados que fueron presentados en el programa 50 Destinos del PACIT. Ellos son -incluida la esta confitería-, el Mirador de Aves en Villa el Chocón; la Puesta en Valor del Área Natural Protegida Selva Triste de Villa La Angostura (sendero accesible) primera etapa, y el Parador de la Cascada de La Fragua de Villa El Manzano.

Tu opinión enriquece este artículo:

Vaca Muerta multiplica el empleo: por cada puesto directo se generan tres trabajos indirectos (y Neuquén vuelve a liderar el crecimiento del país)

Neuquén ratifica su liderazgo en la creación de empleo privado en la Argentina gracias al impulso de Vaca Muerta y a políticas públicas que orientan el desarrollo hacia la generación de oportunidades reales. Entre 2023 y 2025, la provincia sumó más de 4.100 nuevos puestos formales, un crecimiento del 2,9%, según datos del Sistema Integrado Previsional Argentino (SIPA). Este desempeño contrasta con la retracción laboral registrada en la mayoría de las jurisdicciones del país.

Avianca desembarca en Neuquén: alianza estratégica con Aerolíneas Argentinas expande la conectividad internacional

Aerolíneas Argentinas anunció un nuevo acuerdo de código compartido con el Grupo Abra que marca un avance significativo en la integración aérea regional y posiciona a Neuquén entre las ciudades clave dentro del esquema de conexiones internacionales. La alianza permitirá que la aerolínea colombiana Avianca comience a comercializar vuelos hacia la capital neuquina en combinación con los servicios operados por Aerolíneas.

GeoPark rechazó la oferta de Parex y afirmó que el mercado subvalora su potencial tras su desembarco en Vaca Muerta

GeoPark respondió públicamente a la decisión de Parex Resources de abandonar las negociaciones para una posible adquisición y aseguró que la oferta presentada por la petrolera canadiense no reflejaba ni su desempeño actual ni el impacto estratégico de su entrada en Vaca Muerta. La compañía sostuvo que actuó de buena fe durante más de seis semanas y que aportó información técnica y financiera que justificaba un valor sensiblemente superior al propuesto.